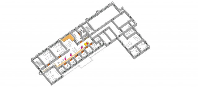
시립 아동힐링센터


















대지위치 : 서울시 동대문구 장안동
지역지구 : 제2종 일반주거지역
용도 : 노유자시설(아동복지시설)
대지면적 : 6,612.10m2
건축면적 : 1,619.44m2
연면적: 5,340.87m2 중 1,108.71m2
건폐율: 24.49% (<60%)
용적률: 67.93% (<150%)
구조 : 철근콘크리트조
층수 : 지하1층, 지상5층
설계기간 : 2025.01~2025.03 (2개월)
공사기간 : 2025. 05~ 2025. 07 (2개월)

(사진=시립아동힐링센터)